ПРОДУКЦИЯ

Мотор-редукторы МПО1М-10

Описание:
Мотор-редукторы планетарные типа МПО1М-10 предназначены для приводов перемешивающих устройств, применяемых в химической, медицинской, микробиологической и других отраслях промышленности. Они могут использоваться также для приводов машин общего назначения. Оборудование имеет сертификаты качества и отмечено положительными отзывами от пользователей из различных промышленных областей.
Подробнее:

УСЛОВИЯ ПРИМЕНЕНИЯ РЕДУКТОРОВ:

  • нагрузка постоянная и переменная одного направления и реверсивная;
  • работа с периодическими остановками и длительная до 24 ч. в сутки;
  • вращение валов в любую сторону;
  • частота вращения входного вала не более 1500 об/мин.;
  • атмосфера с повышенной запыленностью, среда не агрессивная;
  • климатическое исполнение У категории размещения 2 и 3, климатическое исполнение Т категория размещения 2;
  • температура окружающей среды от –40°С до +50°С.

ПРИМЕР УСЛОВНОГО ОБОЗНАЧЕНИЯ ПРИ ЗАКАЗЕ

Мотор-редуктор МПО1М-10-ВК-5,74-7,5/250-АИР132S4-У3, что означает:

Мотор-редуктор планетарный типоразмера МПО1М-10; конструктивное исполнение ВК – вертикальное с опорным фланцем, выходным валом вниз и кольцевой канавкой на нем для закладного кольца, передающего осевые усилия; передаточное отношение редукторной части – 5,74; мощность электродвигателя – 7,5 кВт; частота вращения выходного вала – 250 об/мин; тип электродвигателя – АИР132S4; климатическое исполнение – У и категория размещения – 3.

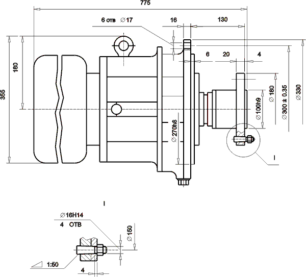
  Габаритные и присоединительные размеры МПО1М-10

ВК-вертикальное с опорным фланцем, выходным валом вниз и кольцевой канавкой на нём.


Ф-2П - горизонтальное, с выходным валом в виде фланцевой полумуфты
с встроенным зубчатым компенсатором. 

 

ТЕХНИЧЕСКИЕ ХАРАКТЕРИСТИКИ

 

Типоразмер мотор-редуктора
Передаточное число Частота вращения выходного вала, об/мин Крутящий момент на выходном валу, Н. м Электродвигатель Масса мотор-редуктора, кг
Типоразмер Мощность, кВт
МПО1М-10-7,34-3,0/130
7,34
130
210
АИР112М6
3,0
125
МПО1М-10-5,74-3,0/170
5,74
170
160
АИР112М6
3,0
125
МПО1М-10-5,74-5,5/170
5,74
170
290
АИР132S6
5,5
150
МПО1М-10-7,34-3,0/195
7,34
195
140
АИР100S4
3,0
105
МПО1М-10-7,34-5,5/195
7,34
195
260
АИР112М4
5,5
125
МПО1М-10-5,74-3,0/250
5,74
250
110
АИР100S4
3,0
105
МПО1М-10-5,74-5,5/250
5,74
250
205
АИР112М4
5,5
125
МПО1М-10-5,74-7,5/250
5,74
250
278
АИР132S4
7,5
150
Максимально допускаемый крутящий момент на выходном валу 430 Н.м
Максимально допускаемая радиальная консольная нагрузка на выходном валу 1500 Н